翔天
咨询热线:15575934477
新闻资讯
翔天动态行业资讯
合作见证
合作客户客户见证
当前位置:首页 » 翔天新闻 » 新闻资讯 » 行业资讯 » 会议室设计的要求

会议室设计的要求

举办会议时,一个好的会议室能让会议取得更好的效果。什么样的会议室会议环境才称得上是舒适呢?这就不得不提到会议室的设计了,设计会议室的布局,灯光等需要考虑到许多因素:如屏幕和座位的距离还有灯光,以及隔音效果。对于视频会议室来说,好的灯光设计对于获得满意的视觉效果是一个很重要的因素。设计良好的视频会议室除了可提供参加会议人员舒适的开会环境外,更可以实现较好的临场感,提高视频会议的效果。视频会议又与普通会议不同,因为使用摄像装置,会议室的灯光、色彩、背景等对视频图像的质量影响非常大。


会议室的布局:

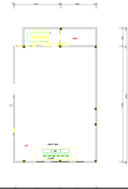
翔天酒店长沙厅

影响画面质量的一大因素,是会场四周的景物和颜色,以及桌椅的色调。一般忌用“白色”、“黑色”之类的色调,这两种颜色对人体将产生“反光”及“夺光”的不良效应。所以无论墙壁四周、桌椅均采用浅色色调较为适宜,如墙壁四周米黄色,浅绿,桌椅浅咖啡色等,南方宜用冷色,北方宜用暖色。对摄像背景(被摄人物背后的墙)不宜挂有山水画等景物,否则将增加摄像对象的信息量,不利于图像质量的提高。

长沙厅简图

从观看效果来看,监视器的布局常放置在相对于与会者中心的位置,距地高度大约一米,人与监视器的距离大约为屏幕的6倍高度。对小型会议室(约10人)只需采用29#至34#的监视器即可,或者大会议室中的某一局部区采用;大型会议室应以投影电视机为主,都采用背投式,可在60#至100#之间酌情选择,以100#为例,其尺寸为:宽2150毫米、高2880毫米、深200毫米,最好置于会议室最前面正对人的地方。

·

会议室照明度:

灯光照度是会议室的基本必要条件。摄像机均有自动彩色均衡电路,能够提供真正自然的色彩,从窗户射入的光(色温约5800K)比日光灯(3500K)或三基色类(约3200K)偏高,如室内有这两种光源(自然及人工光源),就会产生有蓝色投影和红色阴影区域的视频图像;另一方面是召开会议的时间是随机的,上午、下午的自然光源照度与色温均不一样。因此会议室装修应避免采用自然光源,而采用人工光源,所有窗户都应用深色窗帘遮挡。

在使用人工光源时,应选择冷光源,诸如“三色基灯”(R、G、B)效果最佳。避免使用热光源,如高照度的碘钨灯等。会议室的照度,对于摄像区,诸如人的脸部应为500LUX,为防止脸部光线不均匀(眼部鼻子和颌下阴影)三基色灯应放置适当的位置,对于监视器及投影电视机,他们周围的照度不能高于80LUX,否则将影响观看效果。

·

会议室声学要求:

会议室装修时为保证声绝源与吸声效果,室内铺有地毯、天花板、四周墙壁内都装有隔音毯、窗户应采用双层玻璃,进出门应考虑隔间隔装置。

·

会议室供电系统:

为了保证会议室供电系统的安全可靠,以减少经电源途径带来的电气串扰,会议室装修时应采用三套供电系统。一套供电系统作为会议室照明用电;第二套供电系统作为整个终端设备、控制室设备的供电、并采用不中断电源系统(UPS);第三套供电系统用于空调的设备的供电。

接地是电源系统中比较重要的问题。控制室或机房、会议室所需的地线,宜在控制室或机房设置的接地汇流排上引接。如果是单独设置接地体,接地电阻不应大于4欧姆;设置单独接地体有困难时,也可与其它接地系统合用接地体,接地电阻不应大于0.3欧姆。

总的来说,对于会议室的设计方面主要两方面还是在于其布局及灯光效果,良好的的布局和灯光能给会议一种舒适的体验,同时也让会议达到意想不到的效果。